Skip to main content

Fritidsboliger av høy standard med drømmebeliggenhet

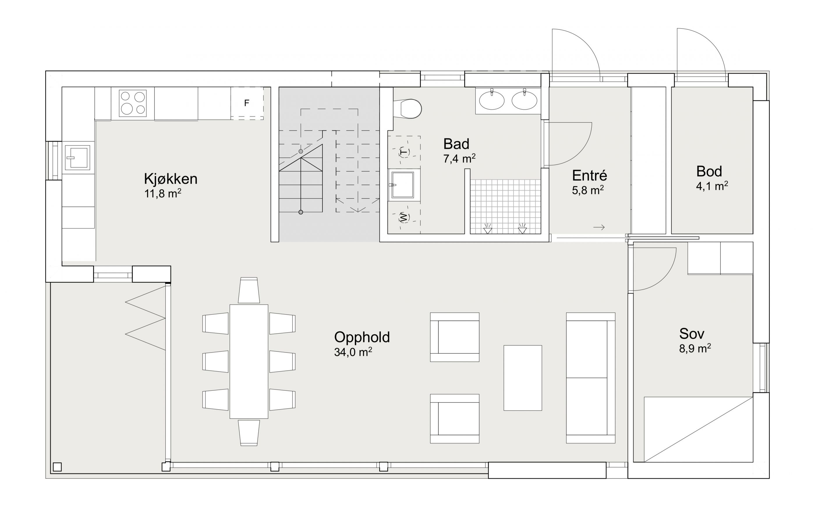
Nye store fritidsboliger med 45 meter til havet er en sjelden anledning i 2023. Når de samtidig har generøse 145 kvm. med 4 soverom og mulighet for 5 har du plass alle i familien og gjester samtidig.

Bebyggelsen har moderne arkitektur og er tegnet av det anerkjente arkitektfirmaet Stein Halvorsen AS. Det er lagt vekt på god utførelse i materialene og høy boligstandard. Fritidsboligene er innholdsrike med moderne kjøkken fra Systemkjøkken og integrerte hvitevarer. Overflatene er av høy kvalitet, med en-stavs parkett i hele fritidsboligen der det også er varme i gulv i 1 etasje. Vegger og tak har panel, der du også finner downlights i taket i kjøkken, entre, stuer og på badene. Det er lagt vekt på at stuen har store vinduer fra gulv til tak for å slippe sommeren inn i stuen og gi en fantastisk utsikt mot vest. Fra stuen/spisestuen og ut til terrassen er det foldedør med hele hele 4 meters bredde – som gir en sømløs inne/ute sone, beskyttet for regn og kjøligere kvelder. Led lys i trapp opp til annen etasje gir en eksklusiv og hyggelig adkomst, der du finner en god oppholdssone for barn og barnebarn når de vil trekke seg tilbake på kvelden etter middag.

Badet i første etasje har egen innredet vaskeromssone og dobbel dusj. På badet i 2 etasje finner du badekar i tillegg til dusj. Det er også utedusj med varmt og kaldt vann, for å skylle av seg etter havsbadet, eller gi hunden en vask etter dagens strandtur. Du finner også en bod i tilknytning til fritidsboligen med utvendig inngang, som er flislagt på gulv med varmekabler.

Fritidsboligen oppføres etter TEK17, med alt det innebærer av fordeler som god isolasjon og lavt strømforbruk til oppvarming, er det lagt opp til varmepumpe i trapp mellom 1 og 2 etasje for de som ytterligere ønsker en høy effektivitet til helårsbruk. TEK17 (teknisk forskrift 2017) gir deg minimalt med vedlikehold, der du kan fokusere på livet i og rundt fritidsboligen.

Å oppføre bygg er håndverk, og vi har valgt solide Mustad Bygg fra Mesterhus i Langesund til å oppføre fritidsboligene. Mustad bygg er en tradisjonsrik familiebedrift, med lang erfaring. Det gir deg trygghet for utførelse, “det blir som avtalt”. Det gis selvfølgelig 5 års garanti fra overtagelse.

Fritidsboligene er innflytningsklare og kan besiktiges etter avtale.

Les mer om beliggenheten her
Last ned leveransebeskrivelse her